Nieuwbouw kantoren / bedrijfsruimten
Nieuwbouwwoningen
Vakantiewoningen
Serres
Garages
Aanbouw / opbouw woningen
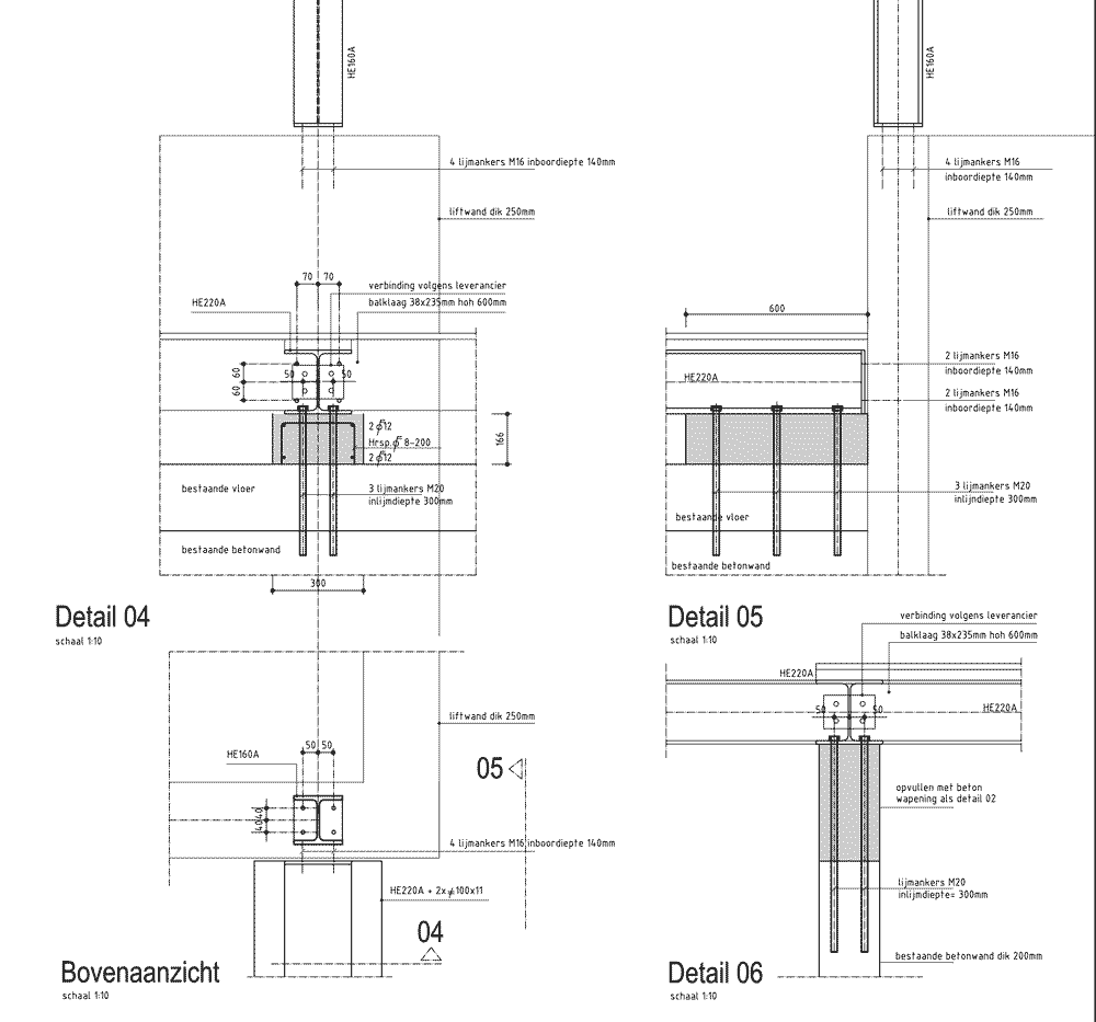
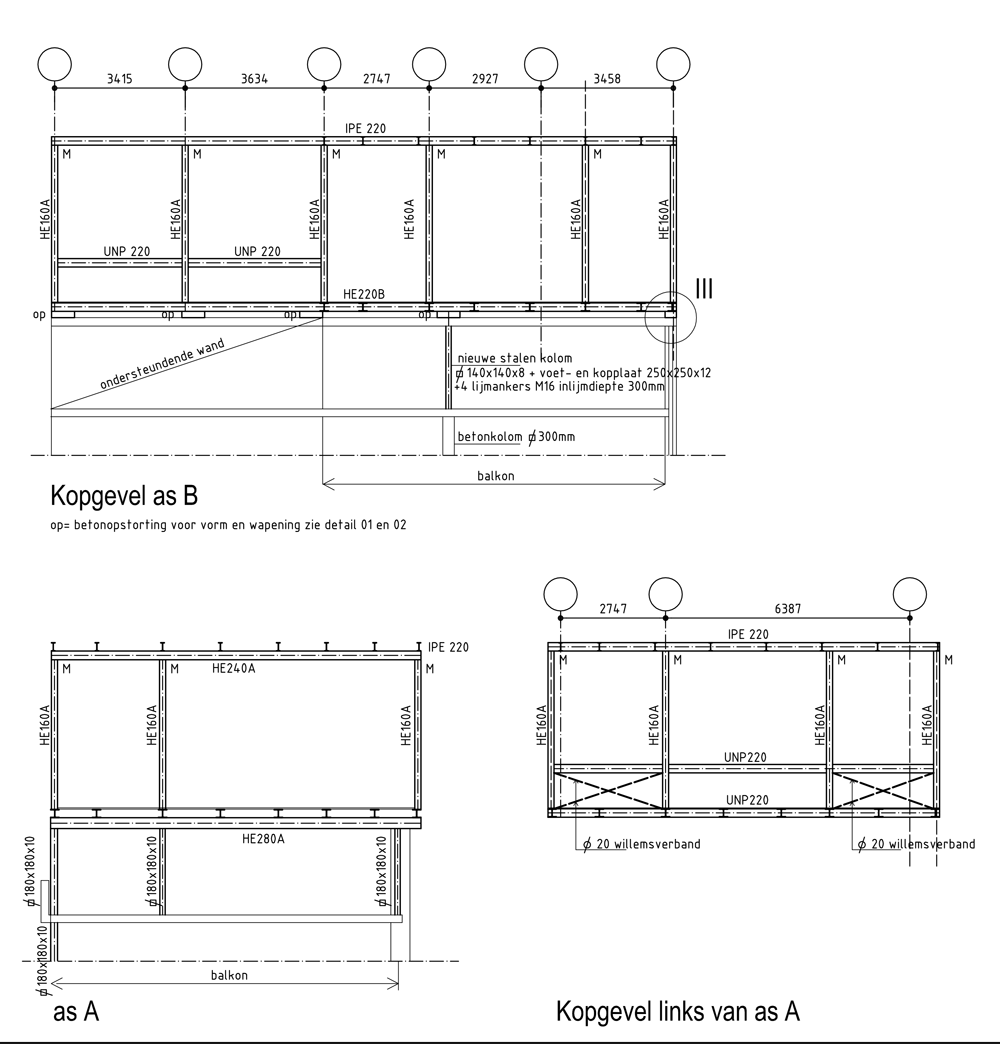
Constructietekeningen
Dakkapellen
Schuren
3D tekenwerk
< vorige
volgende >
terug
Algemene Voorwaarden
Tekenbureau Klaas Bekkema
E-mail: info@tekenbureauklaasbekkema.nl
Telefoon: +31 (0) 6 51199507
Adres: Pompstraat 5, 9331 AM, Norg
© Tekenbureau Klaas Bekkema